Новый контракт на поставку материалов в ППУ изоляции для Северных регионов России
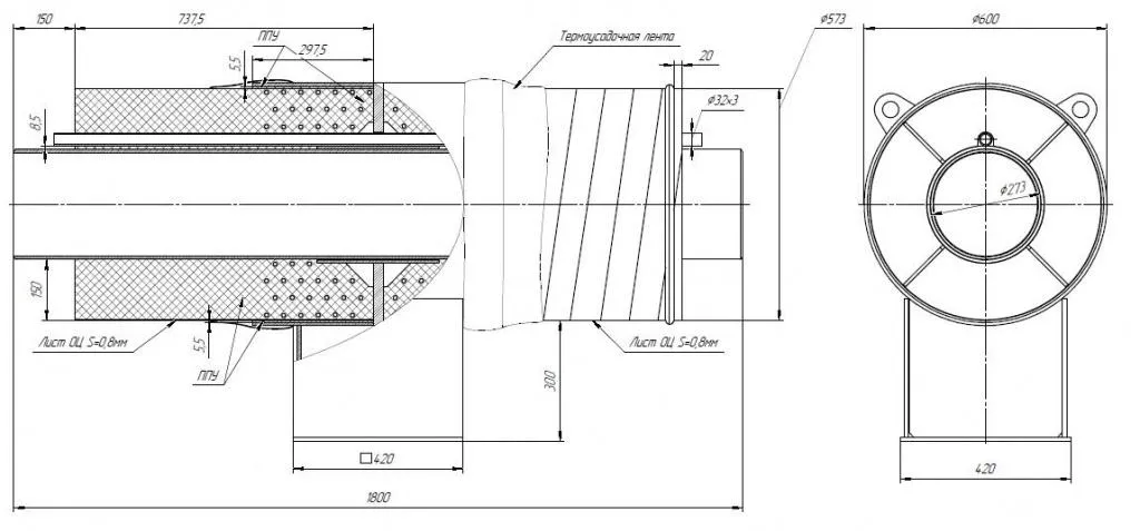
На прошлой неделе компания ТеплоЭнергоПласт заключила договор, в рамках которого будет производиться изоляция на основе пенополиуретана для Опор Нефтепровода с нестандартными характеристиками. Расчет и проектирование изоляции для Опоры предусматривает сохранение плюсовых температурных параметров во внутренней части трубопровода даже в случае воздействия экстремально низкого уровня температур.
В случае если экстремально низкие температуры продержатся долгое время и трассы промерзнут, дополнительной защитой выступает обогревательный кабель, который проходит внутри конструкции по всей длине трубопровода. Это позволяет обеспечить надежную защиту трубопроводов в Северном регионе страны.
Изготовление опор осуществлялось на основании разработанного чертежа:


